
“编者按:
终于开起来了!
2018年6月8号,若干个报道英国生活的公众号发布了海底捞伦敦首店已获政府批准,即将开业的消息。这些消息主要援引自威斯敏斯特区的政府公开文件:

从文件中我们发现,这个988平方米、占据了地面和地下层的新店不仅是海底捞英国首店,更将会是他们在英国的旗舰店。这个位于皮卡迪利圆环Trocadero大楼临街铺位,处于伦敦的核心商业地带,毗邻中国城、苏荷区、特拉法加广场、牛津街。铺位的原址为旅游纪念品店,而其所在大楼之前也以游戏城等中低端场所为主,曾经有餐厅、夜店和连锁快捷酒店品牌入驻的计划也均未能获批或不了了之。

门面图
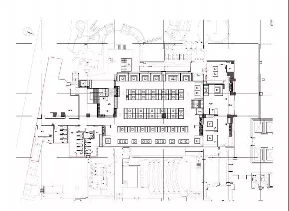
占地145平方米的地面层将会用作单纯的零售用途,其中有橱窗、内部展示柜、储存间和电梯楼梯的空间。零售产品包括:烹饪用具、茶具、食品、服装和带有海底捞logo的玩具和配饰。

一楼平面图
来吃饭的顾客则需要前往843平米的宽敞地下层,其中590平米的用餐区内将可以容纳280个餐位(其中28个餐位会位于两个包厢中)。

地下平面图
海底捞伦敦店目前提交的营业时间是上午10点到凌晨1点,当前计划雇佣120名员工,一天两班倒(10.00- 16.00和16.00 – 01.00)。
我们查询了英国的企业名录,海底捞于2017年8月24号在伦敦注册公司,业务性质包括:餐厅、外卖和流动食品摊、其他食品服务、酒吧。英国公司法规定1个director + 1个股东即可成立有限责任公司,在海底捞英国公司的人事列表中,我们看到了海底捞联合创始人施永宏和创始人张勇的妻子舒萍的名字,他们的头衔都是director。
其实在两个月前,相关消息已经在外媒上出现,4月5日英国的市场咨询公司上出现了“中国火锅连锁筹备英国首店”的一句话短消息。服务行业招工平台Harri上,海底捞的公司介绍内也有今年他们在伦敦和澳大利亚开店的讯息。从政府的文件上我们也看得出,申请就是在4月4号。

海底捞新加坡店
2018年6月6号,推特账号 @w9maidavale更新称:“这是我第一次规划委员会会议,我们很高兴批准通过了海底捞英国首店,希望它能用著名的面条舞给(相当疲软的)Trocadero大楼带来新气象”,底下附上了一段海底捞舞面的短视频。账号主人Geoff Barraclough正是威斯敏斯特区议员。
在政府文件中,海底捞的代理为第一太平戴维斯(但报道英国内容的微信公众号普遍将这一内容隐去,我们猜测是该机构向其放出的消息),他们同样也是今年3月份为海底捞谈下纽约皇后区法拉盛(著名华人聚居区)一处1100平米门店的代理。
如果我们把视线拉回到5年前,海底捞首次进军美国,开在了洛杉矶华人扎堆的富人区Arcadia,到现在他们在加州华人聚居的区域已经有3家分店。不管是美国还是欧洲,海底捞打的都是老乡牌、熟人牌,选址目标直接标的当地的华人聚居处,也反映了华人客群的绝对导向性。


海底捞美国首店
其实海底捞的零售产品,在伦敦中国城的超市中已能买到;而海底捞伦敦店附近也有若干家伦敦起家的川菜馆、火锅店,比如峨眉一派、Hot Pot,他们主要都位于中国城区域。
和海底捞的亚洲门店相比,欧美门店基本上删除了美甲等在外国市场属于“过度服务”的部分,舞面大概是唯一留下的,并且在用餐上也普遍采取了一人一锅的小份装。但其实在伦敦海底捞新店附近,也有一家以设计见长、便于一人食的火锅店“爽爽”,它在伦敦本地食客市场已经有不错的口碑。
欧洲相对分散的国家市场,外来人口占比并不如美洲、澳洲的大城市,而且本土饮食文化更为强势,这也许是难寻国内餐饮连锁的原因。俏江南曾经在荷航飞机餐上有所尝试,去年噹哈驴肉火烧也在米兰试业,还有盛传很多年要进入英国的和合谷,这些都没有洛杉矶、温哥华、奥克兰们的架势。
